How to Use the Auto Take-off AI feature for MeasureSquare 8
This article applied to MeasureSquare 8 Commercial Edition build 9671 and newer

Note: MeasureSquare Commercial Subscription is required for this Feature
Step 1: Import and scale Image
Step 2: Right Click on Imported Image and Select the option for Auto Takeoff (Beta)

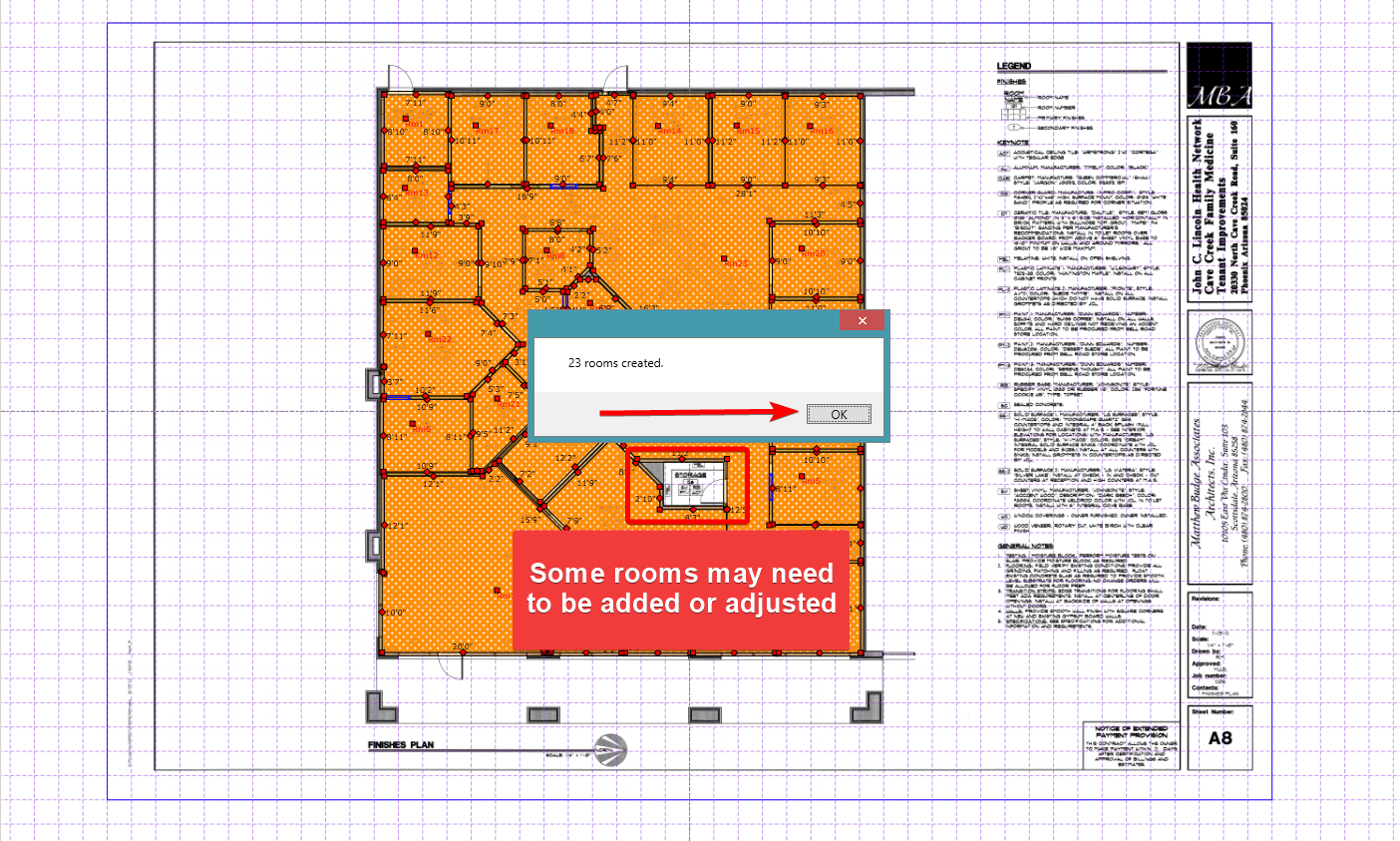
Note: This feature is in Beta and may have different levels of success when utilizing. Manual adjustments may be necessary
Step 3: After loading is complete. Click ok through the Rooms Completed screen and Add rooms that have not been taken off, or make changes to existing rooms to better fit the intent of the original plan.