How to edit an individual wall thickness in MeasureSquare 8?

How to edit an individual wall thickness in MeasureSquare 8?

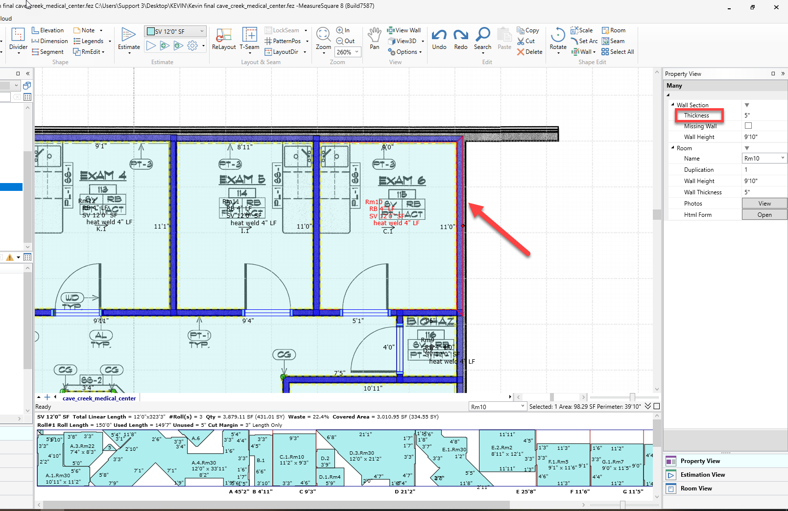
In this article, we will show you how to edit an individual wall thickness in MeasureSquare 8

This article applies to all versions of MeasureSquare 8

Step 1: Click on the two arrows on the top right to open the Property View panel 



Step 2:  Left click on the wall that you want to change the thickness. You'll know it selected if you see the red outline around the wall. Under the Wall Section > Input in the thickness of the wall and hit Enter or click outside of the Property View panel. 




    • Related Articles

    • How to edit an individual wall thickness in MeasureSquare 8?

      In this article, we will show you how to edit an individual wall thickness in MeasureSquare 8 This article applies to all versions of MeasureSquare 8 Step 1: Click on the two arrows on the top right to open the Property View panel Step 2: Left click ...
    • How do I edit an individual wall height on iPad?

      This article will show you how to edit an individual wall in a room you have created on MeasureSquare iPad This article applies to all versions of MeasureSquare mobile Build 2.9.6 and newer. Step 1: Tap on the wall that you want to edit the height > ...
    • How to edit wall profiles on MeasureSquare 8

      In this article, you will learn how to edit and apply products on a wall on MeasureSqaure 8. Step 1: turn on the "View wall" option at the top toolbar. Step 2: click on the room --> right-click on one of the walls that show up on the right side -- > ...
    • How do I apply wall base, transition, quarter-round, etc, in MeasureSquare 8?

      In this article, we will show you how to apply linear products such as Wall base, moldings, transitions, quarter-round, etc. This article applies to Windows MeasureSquare 8. Step 1: Left click and hold on the product and drag it over to the rooms and ...
    • How do I apply wall base, transition, quarter-round, etc, in MeasureSquare 8?

      In this article, we will show you how to apply linear products such as Wall base, moldings, transitions, quarter-round, etc. This article applies to Windows MeasureSquare 8. Step 1: Left click and hold on the product and drag it over to the rooms and ...