How do I add a dimension line in MeasureSquare Mobile for iPad?

How do I add a dimension line in MeasureSquare Mobile for iPad?

This article applies to MeasureSquare Mobile App for IOS

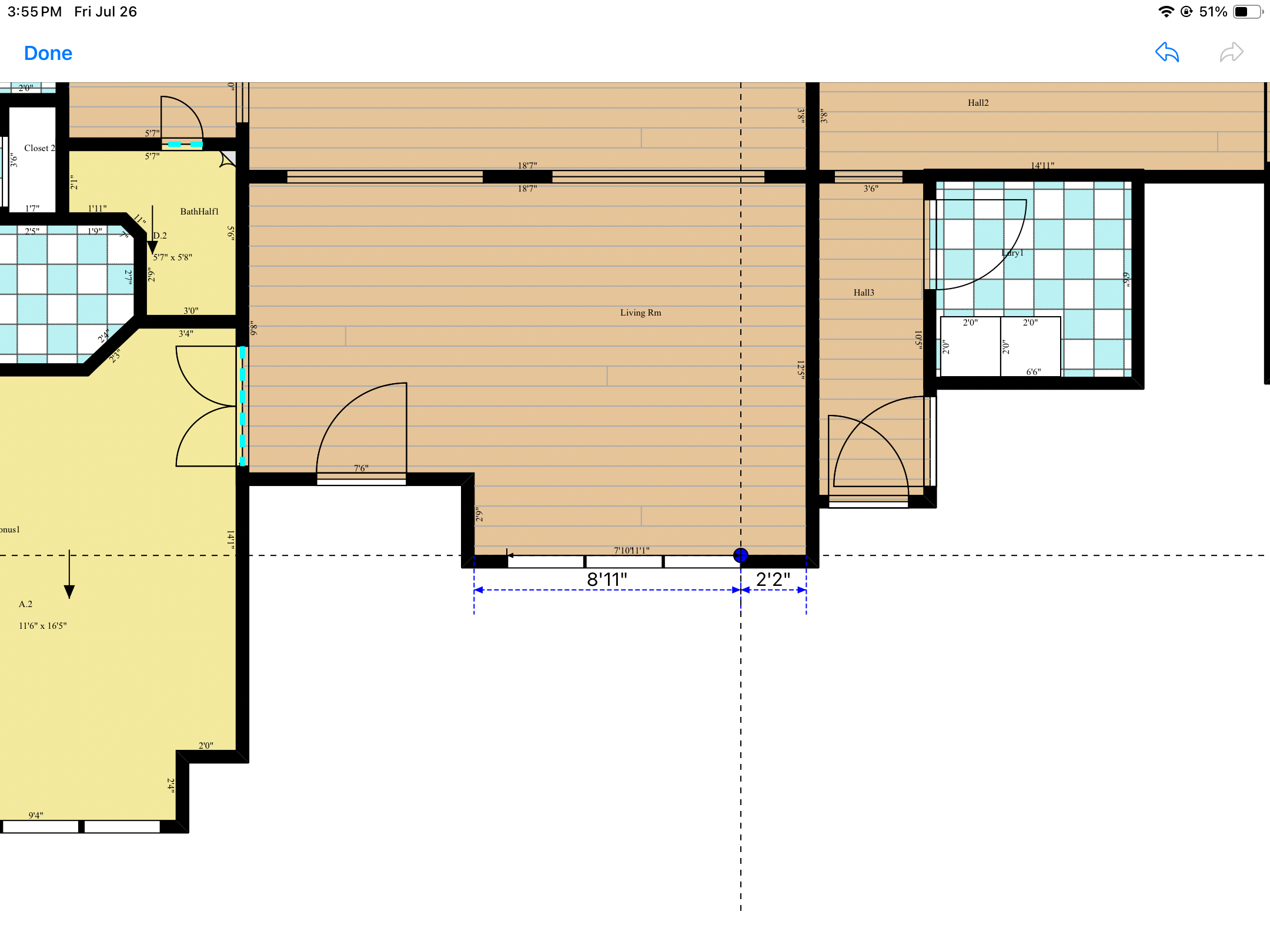
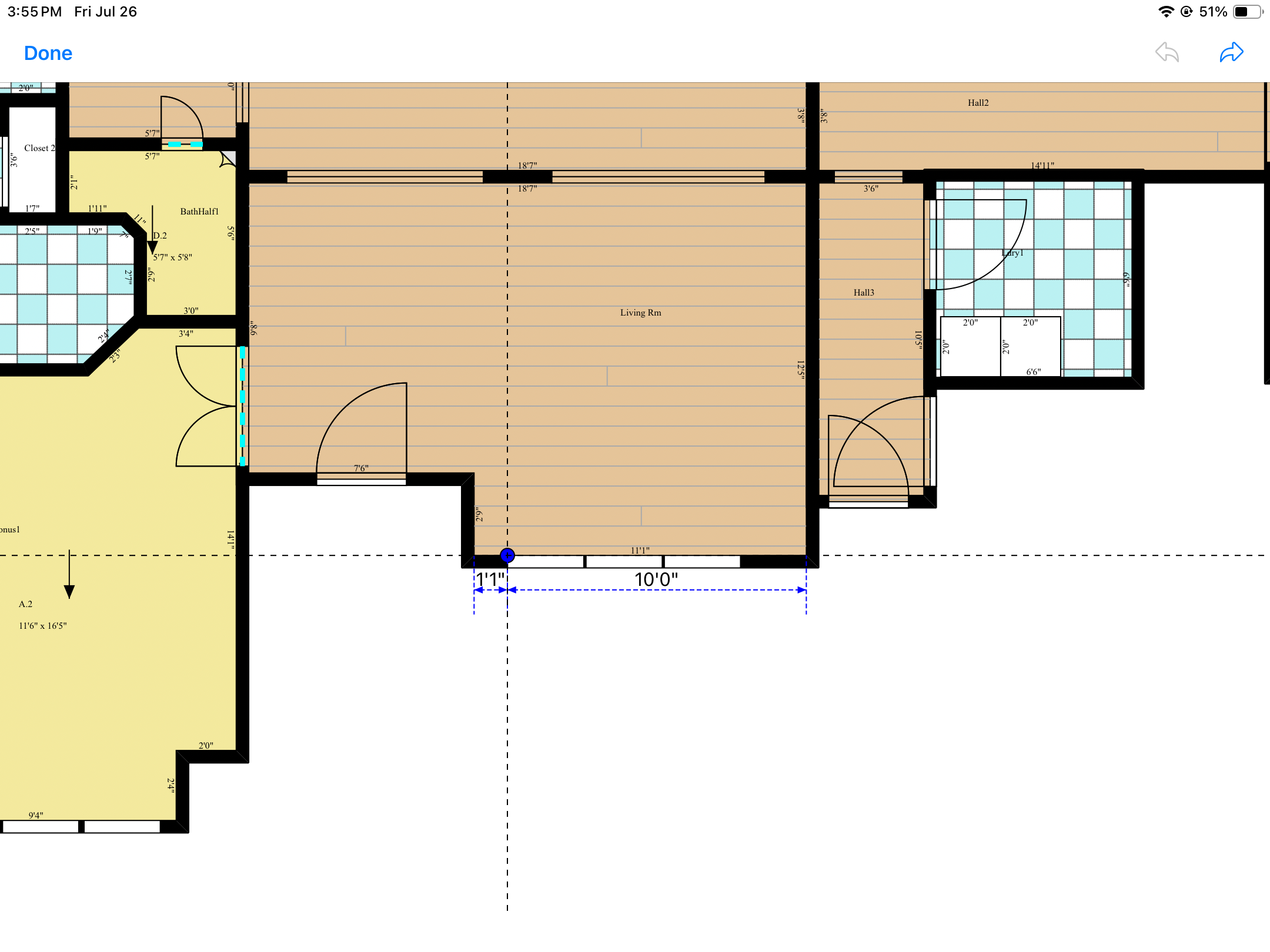
To enter a dimension not shown on the diagram, follow the steps as below:

Step 1: Go to Tools on the toolbar.

Step 2: Select Dimension Line.

Step 3Select a starting point and drag to desired direction or dimension, which is similar to Freedraw.



Step 4: You may reposition your dimension line to make it easier to read, bringing it away from your diagram and into less cluttered space.


    • Related Articles

    • Table of Contents for MeasureSquare Mobile for iPad

      In this article, we will show you the map to the tutorials of MeasureSquare Mobile iOS. 1. Introduction What can MeasureSquare Mobile do? Getting Started (download, install and register). An overview of MeasureSquare Mobile for iOS. Import a ...
    • How do I create and associate add-on products in MeasureSquare Mobile for iPad?

      In this article, we will show you how to create and associate add-on product in MeasureSquare Mobile for iOS. This article applies to MeasureSquare Mobile App for IOS Build 2.9.6 and newer. Create and associate add-on products to other products, so ...
    • How to rotate a stairway on MeasureSquare Mobile on ipad

      In this article, you will learn how to rotate a stairway on MeasureSquare Mobile on iPad Step 1: click on the stair and make sure the "i" icon pops up; Step 2: click on the "i" icon, then select "Rotate"; Step 3: Rotate the stairway to a good angle, ...
    • How do I move a divider line on MeasureSquare Mobile for iPad?

      This article will show you how to move a divider line on MeasureSquare Mobile for iPad. This article applies to MeasureSquare Mobile for iPad all versions. Step 1: Zoom into the room you need to adjust. Step 2: Tap and hold the divider line you need ...
    • How to import and scale a Blueprint in MeasureSquare Mobile for iPad?

      In this article, we're going to show you how to import your blueprint & scale in MeasureSquare Mobile on the iPad This article applies to MeasureSquare Mobile App for IOS Step 1: Email yourself a copy of the blueprint -> Open email press on the ...